Suite La Montagnola – 100 mq di spazio e panorama sul Monte Amiata 🌄
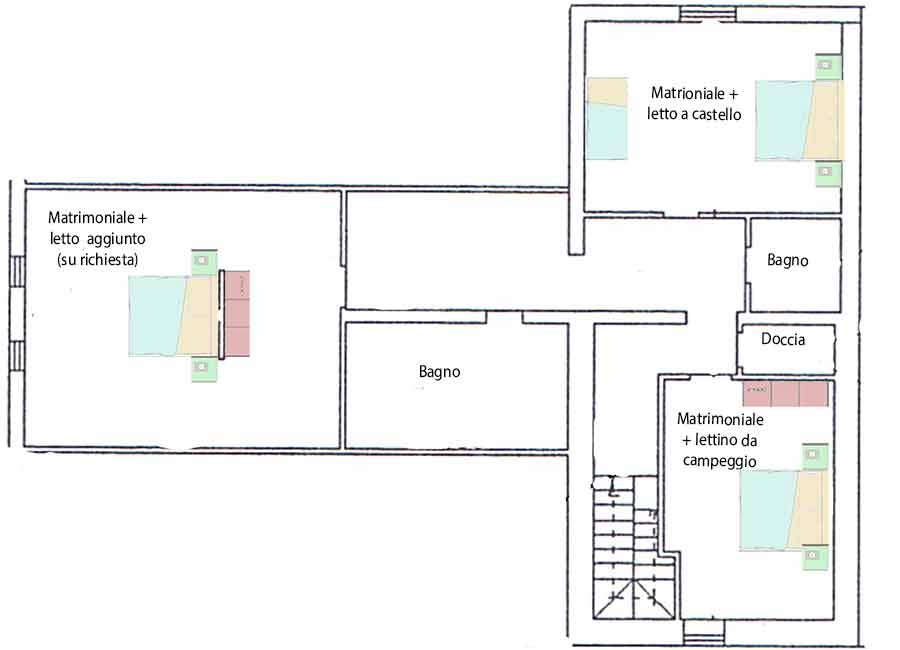
La Montagnola è una suite di 100 mq, ampia e articolata, composta da tre camere indipendenti e pensata per famiglie numerose o gruppi di amici che desiderano condividere l’esperienza senza rinunciare alla comodità.
Le tre camere della Suite
Camera Il Mare
Matrimoniale + 2 letti singoli, con possibilità di aggiungere un lettino da campeggio.
Dalla finestra, nelle giornate più limpide, si può scorgere il promontorio dell’Argentario, circondato dal mare scintillante.
Camera La Montagnola
Matrimoniale + 1 letto a castello.
Dalla finestra ci si affaccia sulla splendida Faggeta del Monte Amiata, che regala scorci suggestivi in ogni stagione.
Camera La Torre
Matrimoniale + 1 letto singolo, con possibilità di aggiungere un lettino da campeggio.
La suite dispone inoltre di 2 bagni, di cui uno con vasca, garantendo maggiore praticità anche per soggiorni con più ospiti.
Può ospitare fino a 11 persone, oltre agli eventuali lettini da campeggio su richiesta.
Pur offrendo ampi spazi e un’elevata capienza, gli ospiti della Suite La Montagnola possono usufruire di tutti i servizi dell’Albergo Le Macinaie, mantenendo al tempo stesso un’invidiabile privacy.
In altre parole, è la soluzione ideale per vivere il Monte Amiata insieme… ma con lo spazio giusto per ognuno ✨














